Trifamiliare in vendita

Avezzano, Via M. Malpighi
€ 265.000
4 locali 4 locali
130 Mq 130 Mq
2 bagni 2 bagni

Trifamiliare in vendita

Avezzano, Via M. Malpighi

Descrizione annuncio

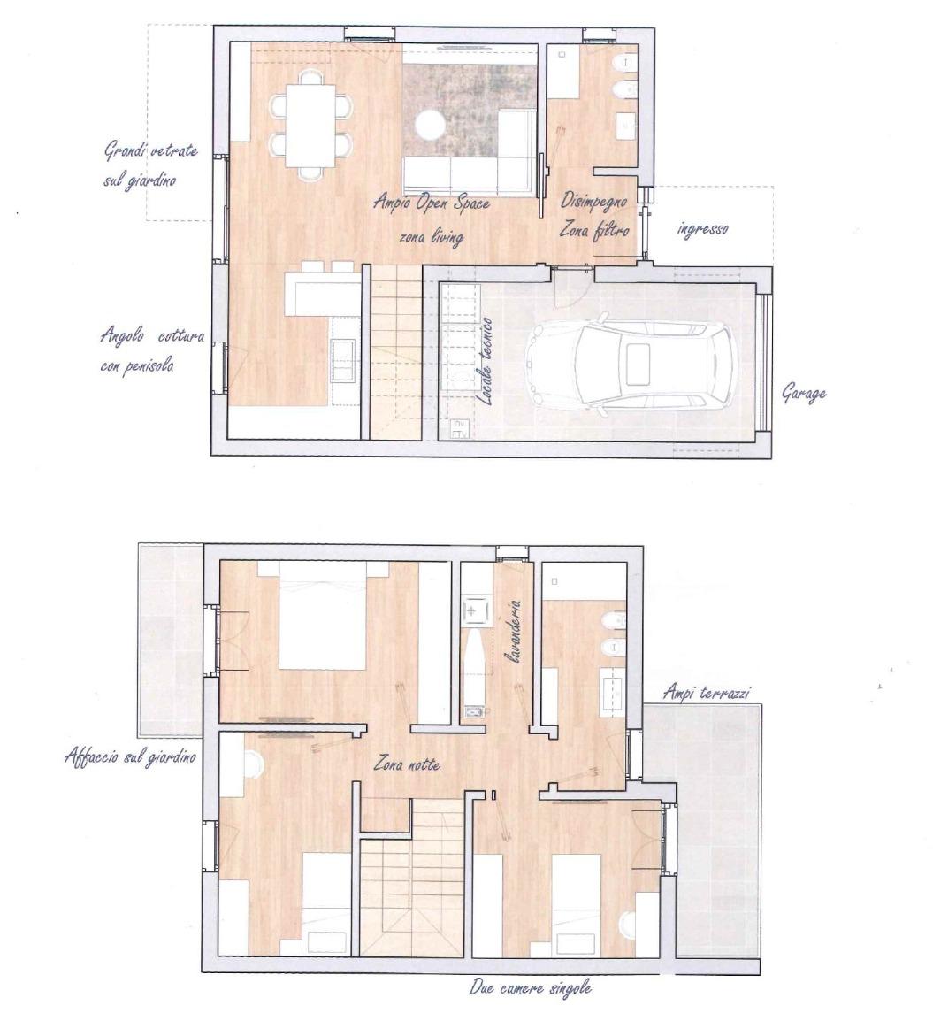
Proponiamo in vendita TRIFAMILIARE di moderna ed elegante architettura, realizzata con le più recenti tecnologie costruttive volte al massimo comfort abitativo e all’efficienza energetica. Ogni unità abitativa si sviluppa su due livelli: Piano terra si apre un ampio soggiorno open space con zona cucina, ideale per chi ama gli spazi luminosi e conviviali, e un bagno di servizio. Al piano primo si trovano tre camere da letto, di cui due con balcone privato, una lavanderia e un bagno principale. All’esterno completano la proprietà un giardino esclusivo, garage e posto auto. Le abitazioni sono full electric, in classe energetica NZEB A4, dotate di impianto fotovoltaico da 6 kW per ogni unità, pompa di calore con boiler integrato e riscaldamento a pavimento, garantendo così bassi consumi e un elevato benessere abitativo in ogni stagione. La qualità costruttiva si riflette nei dettagli con tetto in legno lamellare a vista, infissi in PVC a taglio termico e acustico, predisposizione per impianto di domotica, finiture curate e linee architettoniche moderne ed essenziali che conferiscono un’eleganza senza tempo. Una soluzione ideale per chi cerca una casa nuova, efficiente e confortevole, immersa nella tranquillità ma vicina ai servizi principali.

A PARTIRE DA € 265.000,00-POSSIBILITA' DI DIVERSIFICAZIONE DEGLI SPAZI INTERNI.

Mostra tutto

Nelle vicinanze

Trasporto pubblico Trasporto pubblico
Avezzano
Avezzano
2,9 Km
Svincolo autostrada A24
Svincolo autostrada A24
1,7 Km
Via degli Eroi Civ. 5
Via degli Eroi Civ. 5
2,2 Km
Ricariche auto elettriche Ricariche auto elettriche
BeCharge Alba Fucens
2,0 Km
Scuole Scuole
Istituto di istruzione superiore "Ettore Majorana"
2,4 Km
Scuole
2,5 Km
Farmacia Farmacia
Farmacia Alfidi
2,5 Km
Ospedali Ospedali
Ospedale Santi Nicola e Filippo Avezzano
1,8 Km
obitorio
1,8 Km
Ospedali
1,9 Km
Supermercati Supermercati
Supermercati
2,5 Km
EuroSpin
2,5 Km
Tigre
2,7 Km
Bar Bar
Bar
2,5 Km
Chiosco
2,5 Km
Barissimo
2,8 Km
Ristoranti Ristoranti
Fonte Rio
520 m
Pizzeria Il Sughino
1,4 Km
Napoleone
2,2 Km
Ristoranti
2,4 Km
Old Wild West
2,8 Km
Mostra tutto

Caratteristiche

Rif.:
61133986
Piano:
Su più livelli di 2
Totale piani:
2
Box:
1
Posti auto:
1
Balconi:
1
Mostra tutto
Prezzo Prezzo
€ 265.000
Rata mutuo Rata mutuo
€ 1.250 / mese
Proponi il tuo prezzoProponi il tuo prezzo

Classe Energetica

A4
A4
A4
A4
A4
A4
A4
A4
A4
EP invernale del fabbricato:
EP estiva del fabbricato:
Anno di costruzione:
2026
Riscaldamento:
Autonomo
Tipo impianto:
A pavimento
Tipo alimentazione:
Pannelli

Ti interessa visionare l'immobile?

Fissa un appuntamento  Fissa un appuntamento

Richiedi informazioni

Clicca su Leggi per aprire l'informativa
* Questi campi sono obbligatori

Calcola il tuo mutuo

Semplice e senza impegno
Anticipo

( % )
Mutuo

( % )

pochi semplici passi

inserisci i tuoi dati
Questionario completato
Grazie per aver richiesto un appuntamento senza impegno con un nostro Consulente del Credito e Assicurativo.

Hai inserito correttamente tutti i dati necessari e a breve riceverai una e-mail con un link da convalidare per inviare i tuoi dati.
Affiliato
Agenzia Marsica Srls
Via Marconi, 3 67051 Avezzano (AQ)

Il nostro staff


  • Claudia Santoli
    Affiliata

  • Enzo Lepidi
    Responsabile

  • Sara Conti
    Collaboratrice

  • Domenica Fina
    Coordinatrice

  • Jessica Gagliardi
    Coordinatrice

  • Mauro Marchione
    Collaboratore
Via Marconi, 3 67051 Avezzano (AQ)
Zona: Avezzano
Mostra su mappa
Orari: Dal Lunedì al Venerdì ore 9.00 - 13.00 ore 15.30 - 19.30 Sabato ore 9.00 - 13.00
Affiliato
Agenzia Marsica Srls
Via Marconi, 3 67051 Avezzano (AQ)

2025 Tecnocasa Franchising S.p.A. - P. IVA 08365160152 - Via Monte Bianco 60/A 20089 Rozzano (MI). Ogni agenzia ha un proprio titolare ed è autonoma. Privacy policy | Policy utilizzo | Cookie policy